Manitowoc County, Wisconsin – Land For Sale | Welcome to this well-kept home in the heart of Saint Nazianz. Offering 3 comfortable bedrooms and 1.5 baths, this property blends charm with functionality. The inviting lower level includes a rec room with a cozy fireplace and a screened porch that opens to the backyard, or enjoying warm evenings. Upstairs, a deck provides additional outdoor living space. Nestled next to a beautiful park featuring year round koi ponds, the setting is peaceful and scenic while still being conveniently located in town. This home is in the Valders School district. A wonderful opportunity to enjoy small-town living with natural beauty right outside your door. Many updates to include New roof, Chimney Cap, Refrigerator, and dishwasher. New Patio door to be installed October 6th 2025.
PROPERTY
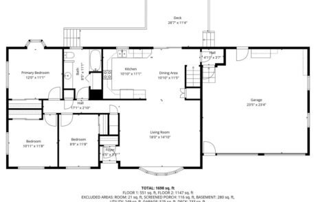
1600 +/- sqft
3 bedroom
1 full bath with tub
1 Half bath
Finished family room with fireplace
Screened patio
Large Deck
Year round koi Pond
Beautiful Landscaping
Next to park
Valders School District
DISTANCES
15 min from Manitowoc
15 miles from Killsnake State Wildlife area
OTHER
2024 taxes $2,489
Built in 1962
Inclusions: Stove, Refrigerator, dishwasher, Microwave, Washer, Dryer, Dehumidifier, Water Softener, Shed, Pond Equipment, Shelving Basement and Garage
Excluded: Sellers personal property
Fill out the form below to leave a message for the Land Professional on this listing. We appreciate your interest and will get back to you as soon as possible.






































































